Naura

109 m²

Naura

109 m²
to:
*
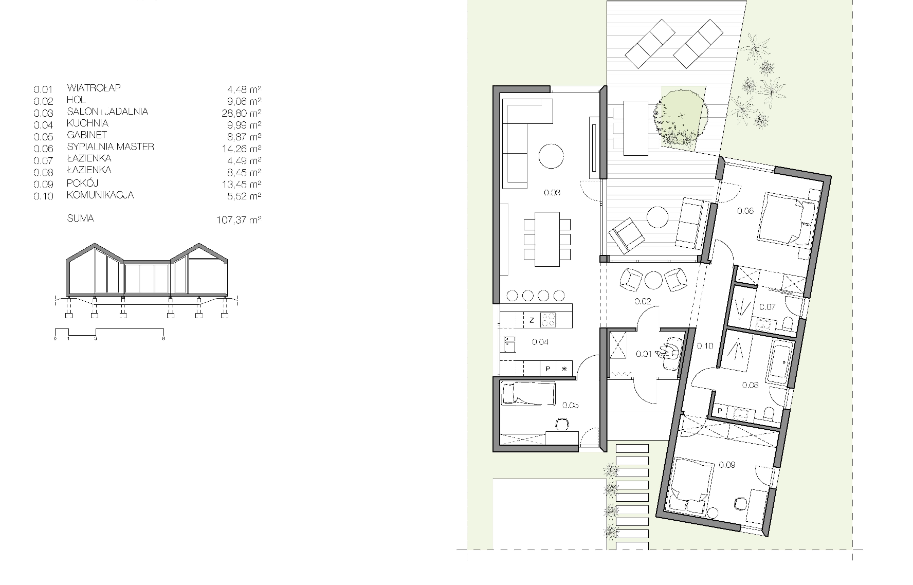
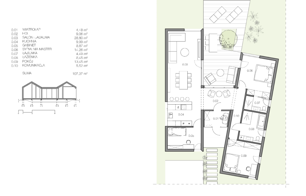
109 m² POWIERZCHI UŻYTKOWEJ
*
3 sypialnie
*
2 łazienki
*
pomieszczenie gospodarcze
*
opcjonlany garaż
109 m²
POWIERZCHI
UŻYTKOWEJ
3 sypialnie
2 łazienki
pomieszczenie gospodarcze
opcjonalny garaż

Mieszkaj, nie buduj.

NAURA 109m² to bryła złożona z trzech modułów oraz dużym narożnym przeszkleniem zapewniającym wyjątkowy wygląd. Nowoczesna dom składający się z dwóch głównych modułów z dachem 30° oraz łącznika z dachem płaskim. Budynek posiada funkcjonalnie rozplanowane wnętrze dzięki temu, że przestronna strefa dzienna oraz kuchnia połączone są łącznikiem tworząc jadalnie. Mamy do dyspozycji trzy niezależne sypialnie, 2 łazienki oraz przestronny hall wejściowy.

pełna obsługa: od formalności po transport
inteligentna zabudowa maksymalizująca przestrzeń
stalowa konstrukcja na pokolenia
Cena bez niespodzianek
precyzyjna budowa w kontrolowanych warunkach

Tak możesz mieszkać

Rzuty

Cenę znasz od razu

Stan Deweloperski
449.000 PLN
  • gotowy dom w konstrukcji stalowej złożony w 3 modułach
  • elewacja z trwałego, niepalnego kompozytu Rockpanel
  • izolacja domu zgodna z wyśrubowanymi normami mieszkaniowymi
  • instalacje elektryczna i wodno - kanalizacyjna
  • 3 szybowe okna oraz ciepłe drzwi
  • dach z blachy na rąbek wraz z rynnami i rurami spustowymi
  • wentylacja mechaniczna
  • ściany z surowej płyt G/K
  • ceny netto
Poznaj szczegóły dla tego stanu
Stan Wykończony
549.000 PLN
to co w Stanie Deweloperskim oraz:
  • w pełni gotowa i urządzona łazienka - z kabiną prysznicową, WC podwieszane, szafka z umywalką, grzejnik drabinkowy, ogrzewanie podłogowe
  • ściany wewnętrzne na gotowo wykończone białą płytą dekoracyjną
  • podłoga z paneli wraz z cokołami
  • podstawowe oświetlenie sufitowe
  • ogrzewanie elektryczne hybrydowe całego domu
  • drzwi wewnętrzne
  • ceny netto
Poznaj szczegóły dla tego stanu
Stan Pełny
615.000 PLN
to co w Stanie Wykończonym oraz:
  • zabudowa kuchenna wraz z wyspą i blatami oraz sprzętem AGD: lodówka, płyta indukcyjna, okap, zmywarka, zlew i bateria
  • zabudowa meblowa w sypialniach - dekoracyjna ściana z elementami tapicerowanymi wezgłowia oraz szafy w zabudowie
  • szafa wnękowa w przedpokoju wraz z siedziskiem tapicerowanym
  • zabudowa RTV w części dziennej
  • ceny netto
Poznaj szczegóły dla tego stanu
Bezkompromisowa technologia

Trwałość ze stali

Większość domów modułowych kojarzy się z kompromisem. My wybraliśmy technologię bezkompromisową. Nasz szkielet stalowy to precyzja, której nie osiągalna przy budowaniu domu w drewnie.
Skała

Elewacja Rockpanel

Bezobsługowe piękno, odporne na warunki atmosferyczne. Panele ze sprasowanej wełny skalnej.
Eko

Ekologia ukryta w technologii

Proces prefabrykacji generuje minimalną ilość odpadów.
Oszczędność

Dom, który Cię otula.

Stworzyliśmy dom, który zatrzymuje energię wewnątrz, dba o Twój portfel i zapewnia unikalne uczucie przytulności od pierwszego dnia.
Ciepło

Ogrzewanie 360°

Nasze maty grzewcze na podczerwień montujemy pod podłogą oraz na suficie. Efekt? Równomierny rozkład temperatury.
Prostota

Inteligentne Zarządzanie (System Smart-WiFi)

Inteligentne Zarządzanie (System Smart-WiFi) Twoim domem zarządzasz z telefonu, z dowolnego miejsca na świecie. Każde pomieszczenie posiada niezależny sterownik WiFi. 
NIezawodność

Test Szczelności (Blow Door Test)

Nie prosimy Cię o wiarę na słowo – dajemy Ci certyfikat. Dom mieszkalny przechodzi profesjonalny test ciśnieniowy.
Bezkompromisowa technologia

Skuteczna dostawa

Budowa domu kojarzy się ze stresem? Nie u nas. Przejmij kontrolę nad procesem dzięki naszej logistyce
normy

Produkcja w wytwórni

Żaden deszcz ani mróz nie wpłynie na jakość wykonania.
Budowa

Pełna transparentność

Zapraszamy Cię do nas! Możesz odwiedzić swój dom na etapie produkcji, sprawdzić postępy i odebrać gotowy budynek jeszcze w naszej hali.
Pomoc

Wsparcie na fundamencie:

Przygotowanie mediów i fundamentu jest po Twojej stronie, ale nie zostawiamy Cię z tym samego. Dostarczamy precyzyjne projekty i prowadzimy Cię za rękę przez ten etap.

Wersja z garażem

Twój dom może być również z garażem.

Wnętrza

Grupa meveline:

Meveline Neo sp. z o.o.

Skulska 20

96-321 Nowa Bukówka

NIP 5213864603

MEVELINE DUO sp. z o.o.

Skulska 20

96-321 Nowa Bukówka

NIP: 9512398737